Brooksville, Florida--(Newsfile Corp. - April 27, 2026) - Tersis Technologies, Inc. (OTCID: TERS) ("Tersis" or the "Company"), a circular economy infrastructure company focused on converting waste into energy and high-value byproducts, today announced that it has executed a non-binding Memorandum of Understanding ("MOU") with Vivum Intelligent Media Limited ("Vivum") to pursue the first United Kingdom deployment of Tersis' Oaktree modular utility platform.
The collaboration is focused on securing the $1,000,000 TERA 2026 Award, which, if awarded, is expected to support procurement, shipping, and commissioning of an initial $1.1 million commercial "Factory-in-a-Box" unit in the United Kingdom.
The planned installation is based on Tersis' 2.2MW Dockmaster architecture and is designed to convert waste streams into dispatchable power, thermal energy, and carbon-based outputs, including biochar and activated carbon. The platform is also designed to support waste remediation applications, including treatment of PFAS and microplastics.
FIGURE 1 — 2.2 MW Dockmaster "Factory-in-a-Box" Architecture

Isometric and elevation views of the modular Dockmaster unit planned for the UK deployment.
To view an enhanced version of this graphic, please visit:
https://images.newsfilecorp.com/files/12096/294359_tersis1.jpg
Tersis expects the UK project to serve as a proof-of-build site for repeatable modular deployments across distributed waste-to-energy markets, where speed of deployment, permitting efficiency, feedstock access, and local power demand are key commercial drivers.
Under the MOU, Vivum will lead the TERA 2026 application process, including financial modeling and submission strategy. Tersis will provide exclusive technology rights for the initial UK proof-of-build site, along with engineering, commissioning, and system integration support. Tersis will also prioritize manufacturing capacity and supply chain allocation to support the planned deployment timeline.
The parties intend to jointly pursue site control, permitting, and utility off-take arrangements for the UK facility. Tersis has also agreed, subject to award and final project validation, to fund the remaining $100,000 capital requirement necessary to complete the proposed $1.1 million system.
"This agreement represents an important step toward commercial deployment of our modular waste-to-energy platform. The proposed UK installation is designed to demonstrate a repeatable infrastructure model that can be scaled across multiple markets, waste streams, and distributed power applications."
— Antonio Uccello, Chief Executive Officer, Tersis Technologies
The MOU establishes a non-binding framework for collaboration and is expected to lead to a definitive agreement if the TERA 2026 Award is secured and final project validation is completed.
Engineering Reference
Selected concept and equipment visuals supporting the Oaktree platform deployment.
FIGURE 2 — Oaktree Biochar & Energy Facility: Site Plan Concept

Conceptual site plan, Project 439.02 — Waldron Engineering & Construction. 12-unit pyrolysis train layout with feedstock handling, water treatment, and balance-of-plant infrastructure.
To view an enhanced version of this graphic, please visit:
https://images.newsfilecorp.com/files/12096/294359_tersis2.jpg
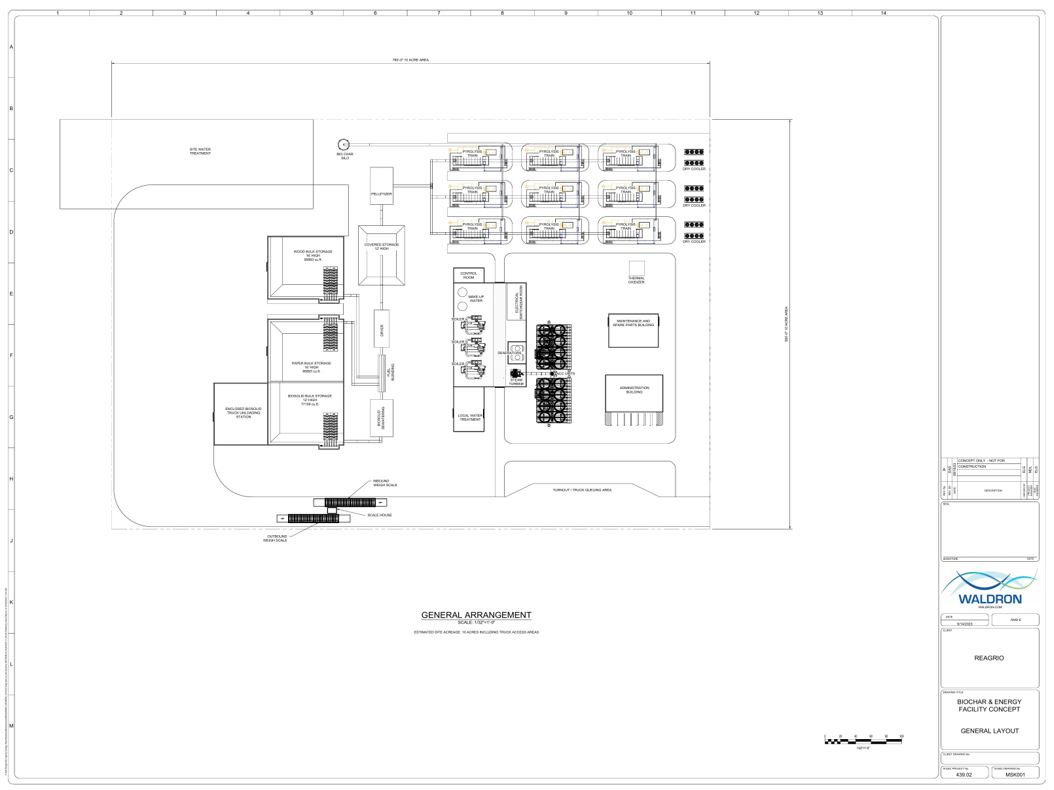
FIGURE 3 — General Arrangement (10-Acre Configuration)

General arrangement drawing showing 9-train configuration, biosolid/paper/wood storage, and supporting plant systems on a 10-acre site.
To view an enhanced version of this graphic, please visit:
https://images.newsfilecorp.com/files/12096/294359_tersis3.jpg
FIGURE 4 — 3D Concept Model

3D model rendering of the Oaktree facility concept, showing pyrolysis trains, dryers, storage buildings, and steam-turbine power island.
To view an enhanced version of this graphic, please visit:
https://images.newsfilecorp.com/files/12096/294359_tersis4.jpg
Equipment & Commissioning

Photographs from the Tersis modular system manufacturing and pre-commissioning environment.
To view an enhanced version of this graphic, please visit:
https://images.newsfilecorp.com/files/12096/294359_tersis510.jpg
About Tersis Technologies, Inc. (OTCID: TERS)
Tersis Technologies, Inc. is focused on acquiring and deploying technologies that convert waste streams into energy, carbon products, and other valuable outputs. The Company's strategy is centered on scalable, modular infrastructure designed to generate both environmental and economic returns.
Forward-Looking Statements
This press release contains forward-looking statements within the meaning of applicable securities laws, including statements regarding anticipated award outcomes, project development, deployment timelines, scalability, competitive positioning, and potential revenue streams. These statements involve risks and uncertainties that could cause actual results to differ materially. Tersis undertakes no obligation to update forward-looking statements except as required by law.
INVESTOR CONTACT
Tersis Technologies, Inc.
Email: info@Tersis.Tech
Joe Dunhill, Director
941-323-8538
Web: www.Tersis.Tech
# # #

To view the source version of this press release, please visit https://www.newsfilecorp.com/release/294359
Source: Tersis Technologies Inc.